Register now for the AIAGC January Monthly Membership Meeting & Tour:
City Water
Wednesday, January 17th @ 12pm
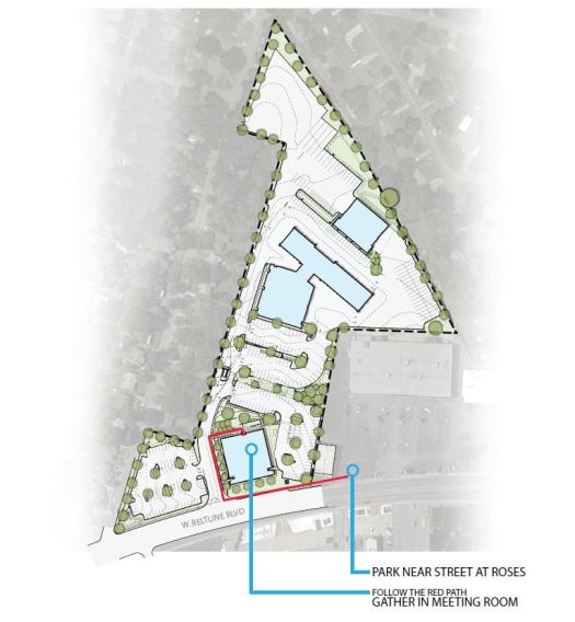
4013 W. Beltline Blvd

Located in an underutilized corridor in Columbia, Watson Tate Savory’s design converts an abandoned automobile dealership into the City of Columbia’s water division facility, simplifying a diverse program for reuse of existing structures. The glazed office building exaggerates the original showroom’s extroverted spirit, bathing occupants in daylight. New detailing on the pre-engineered warehouse expresses the roof plane in floating undulations, referencing the site’s topography. Site improvements include pervious paving, xeriscaping and rain gardens.
$5 (+ convenience fee) Presentation, Tour, and Lunch @ 12pm.
Register online by 5pm on Tuesday, January 16 at:

Sponsored by:


